X
Share this property with friends & family!
Facebook
Twitter
Pinterest
LinkedIn
Email
Copy Link
WhatsApp
Messenger
SMS
<
4321 Property
⇦
SELL MY PROPERTY - FREE
SELL MY
PROPERTY - FREE
Login
← Similar properties
Loading
For Sale
<
>
Show This Photo
£750,000
House Matfield
For sale 4 bedrooms house
Details
Map
ADVERTISE
Show Map
Close Map
Currency: GBP ▼
~Fremlin Walk (1)
Anerley (1)
~West Kensington (1)
~Rotherhithe (1)
~East Dulwich (1)
~Tooting (1)
Crawley (1)
Crystal Palace (1)
~Chelsea (2)
Hartfield (1)
Hove (2)
Hurstpierpoint (1)
Kensington (3)
Knightsbridge (2)
London (102)
Maidstone (1)
North Woolwich (1)
Pevensey Bay (1)
Plumstead (1)
~Limehouse (2)
~Wapping (2)
St Leonards On Sea (1)
Strood (1)
Vauxhall (1)
Victoria (3)
Woolwich (1)
-
London (106)
Liverpool (18)
London (16)
Manchester (12)
Manchester City Centre (9)
Glasgow (8)
Bradford (6)
Sheffield (6)
Durham (6)
Eastbourne (5)
more cities ▼
For Sale >
United Kingdom
>
England
>
Kent
>
Tunbridge Wells District
>
Matfield
Map
Street View
Save
See all 6
Show All 6 Photos
£750,000
CHECK IF AVAILABLE
CHECK IF AVAILABLE
House 4 bedrooms
For Sale
Matfield
United Kingdom
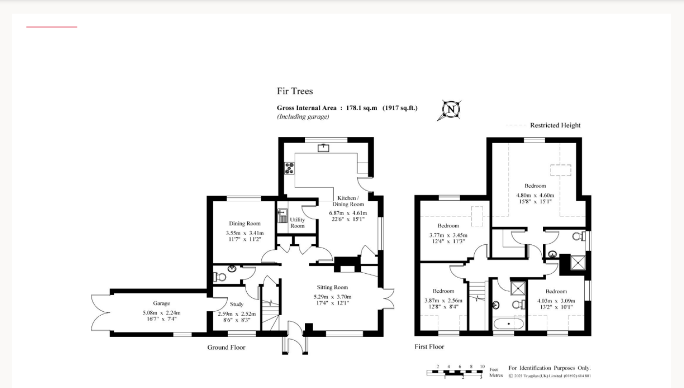
2 Storey House Sitting on a Farm
4 Double Bedroom House (1 En-suite)
1 family Bathroom
Living Room
Dining Room
Study
Kitchen Diner
Single Garage
Double Drive
Medium Sized Garden
CHECK IF AVAILABLE
Show Map
Get Alerts