For Sale   >   Thailand Flag  Thailand   >  Kamphaeng Phet  >  Ban Nakhon Chum
close map
Pic:1 of 10
Pic:2 of 10
Pic:3 of 10
Pic:4 of 10
See all 10 Pic:5 of 10
Pic:6 of 10
Pic:7 of 10
Pic:8 of 10
Pic:9 of 10
Pic:10 of 10
Show All 10 Photos
  • THB6,500,000
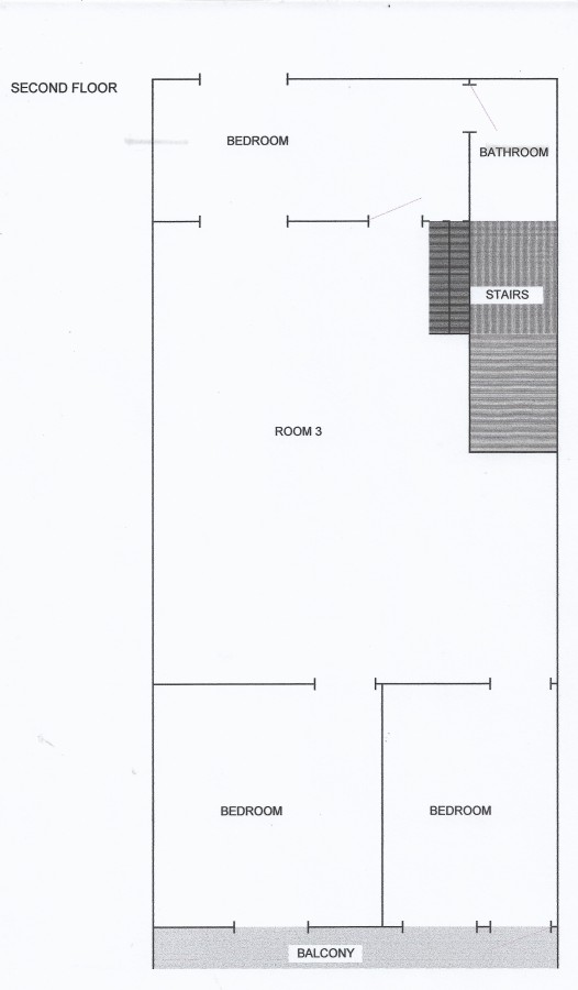
  • 5 bedrooms
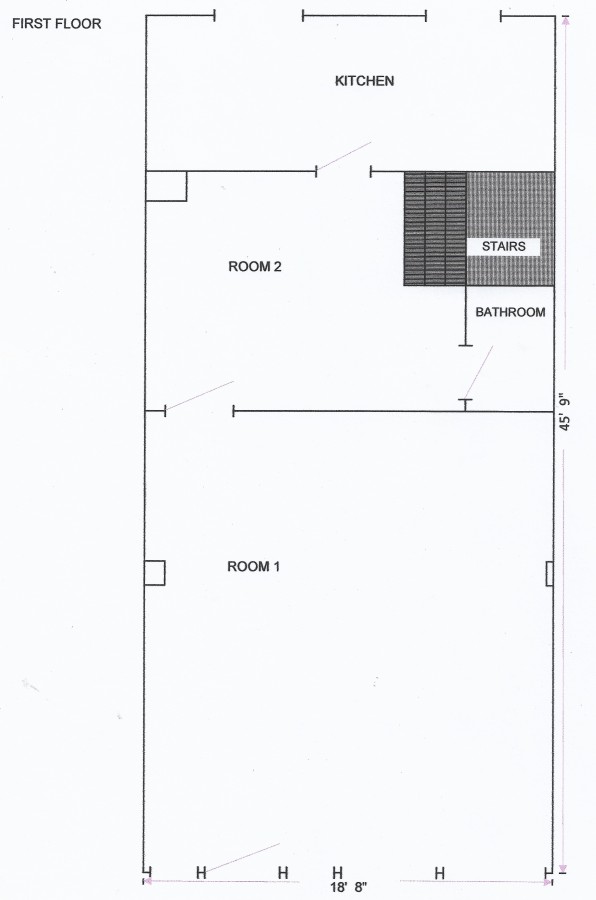
End 3 story + rooftop townhouse at intersection of main Bangkok - Chiang Mai highway in Nakhon Chum,
Kamphaeng Phet. Can be used as residential or business. First floor has 2 rooms + kitchen + bathroom.
Second floor has 2 rooms + 3 bedrooms + bathroom. Third floor has 1 room + 2 bedrooms + bathroom.
Rooftop area is walled. Approximately 912 square feet on each floor.