Show All 3 Photos
- €390,000

- Villa 3 bedrooms
- For Sale
- Albano Laziale
Italy
CHECK IF AVAILABLE
CHECK IF AVAILABLE
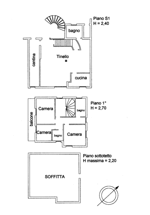
House to renovate in Albano Laziale, with sea view. Close to many landmarks such as the Pope`s summer residence 5km, Lake Nemi and Castel Gandolfo 6km, the sea is 22km away, the center of Rome is 22km away but you can get there directly by train which is 1km from the residence and reaches Termini central station, passing through Ciampino airport. The house consists of 3 floors, divided into the basement currently a hobby room with kitchen and bathroom, ground floor with kitchen, living room and dining room, and a bathroom, plus an external porch, first floor, with 3 bedrooms and two bathrooms and two terraces, and lastly the habitable attic as under roof. Outside we have a courtyard of about 250 square meters, and a garage. The house is located in the artisan area, the area is currently undergoing redevelopment, it could be a good investment. For additional photos contact me, if you are seriously interested.
Renovierungsbedürftiges Haus in Albano Laziale mit Meerblick. In der Nähe vieler Sehenswürdigkeiten wie der Sommerresidenz des Papstes in 5 km Entfernung, dem See Nemi und Castel Gandolfo in 6 km Entfernung, dem Meer in 22 km Entfernung und dem Zentrum von Rom in 22 km Entfernung, aber Sie können direkt mit dem Zug dorthin gelangen, der 1 km von der Residenz entfernt ist und Termini Central erreicht Bahnhof, der den Flughafen Ciampino passiert. Das Haus besteht aus 3 Etagen, aufgeteilt in das Untergeschoss derzeit ein Hobbyraum mit Küche und Bad, Erdgeschoss mit Küche, Wohnzimmer und Esszimmer, sowie ein Badezimmer, plus eine Außenveranda, Obergeschoss, mit 3 Schlafzimmern und zwei Bädern u zwei Terrassen und schließlich der bewohnbare Dachboden wie unter Dach. Draußen haben wir einen Hof von etwa 250 Quadratmetern und eine Garage. Das Haus befindet sich im Handwerkerviertel, das Gebiet wird derzeit saniert, es könnte eine gute Investition sein. Für weitere Fotos kontaktieren Sie mich bei ernsthaftem Interesse.
Renovierungsbedürftiges Haus in Albano Laziale mit Meerblick. In der Nähe vieler Sehenswürdigkeiten wie der Sommerresidenz des Papstes in 5 km Entfernung, dem See Nemi und Castel Gandolfo in 6 km Entfernung, dem Meer in 22 km Entfernung und dem Zentrum von Rom in 22 km Entfernung, aber Sie können direkt mit dem Zug dorthin gelangen, der 1 km von der Residenz entfernt ist und Termini Central erreicht Bahnhof, der den Flughafen Ciampino passiert. Das Haus besteht aus 3 Etagen, aufgeteilt in das Untergeschoss derzeit ein Hobbyraum mit Küche und Bad, Erdgeschoss mit Küche, Wohnzimmer und Esszimmer, sowie ein Badezimmer, plus eine Außenveranda, Obergeschoss, mit 3 Schlafzimmern und zwei Bädern u zwei Terrassen und schließlich der bewohnbare Dachboden wie unter Dach. Draußen haben wir einen Hof von etwa 250 Quadratmetern und eine Garage. Das Haus befindet sich im Handwerkerviertel, das Gebiet wird derzeit saniert, es könnte eine gute Investition sein. Für weitere Fotos kontaktieren Sie mich bei ernsthaftem Interesse.
House to renovate in Albano Laziale, with sea view. Close to many landmarks such as the Pope`s summer residence 5km, Lake Nemi and Castel Gandolfo 6km, the sea is 22km away, the center of Rome is 22km away but you can get there directly by train which is 1km from the residence and reaches Termini central station, passing through Ciampino airport. T...
View more
CHECK IF AVAILABLE
Facebook
Twitter
Pinterest
LinkedIn
Email
Copy Link
WhatsApp
Messenger
