Show All 12 Photos
- €67,000

- House 8 bedrooms
- For Sale
- Milis
Italy
CHECK IF AVAILABLE
CHECK IF AVAILABLE
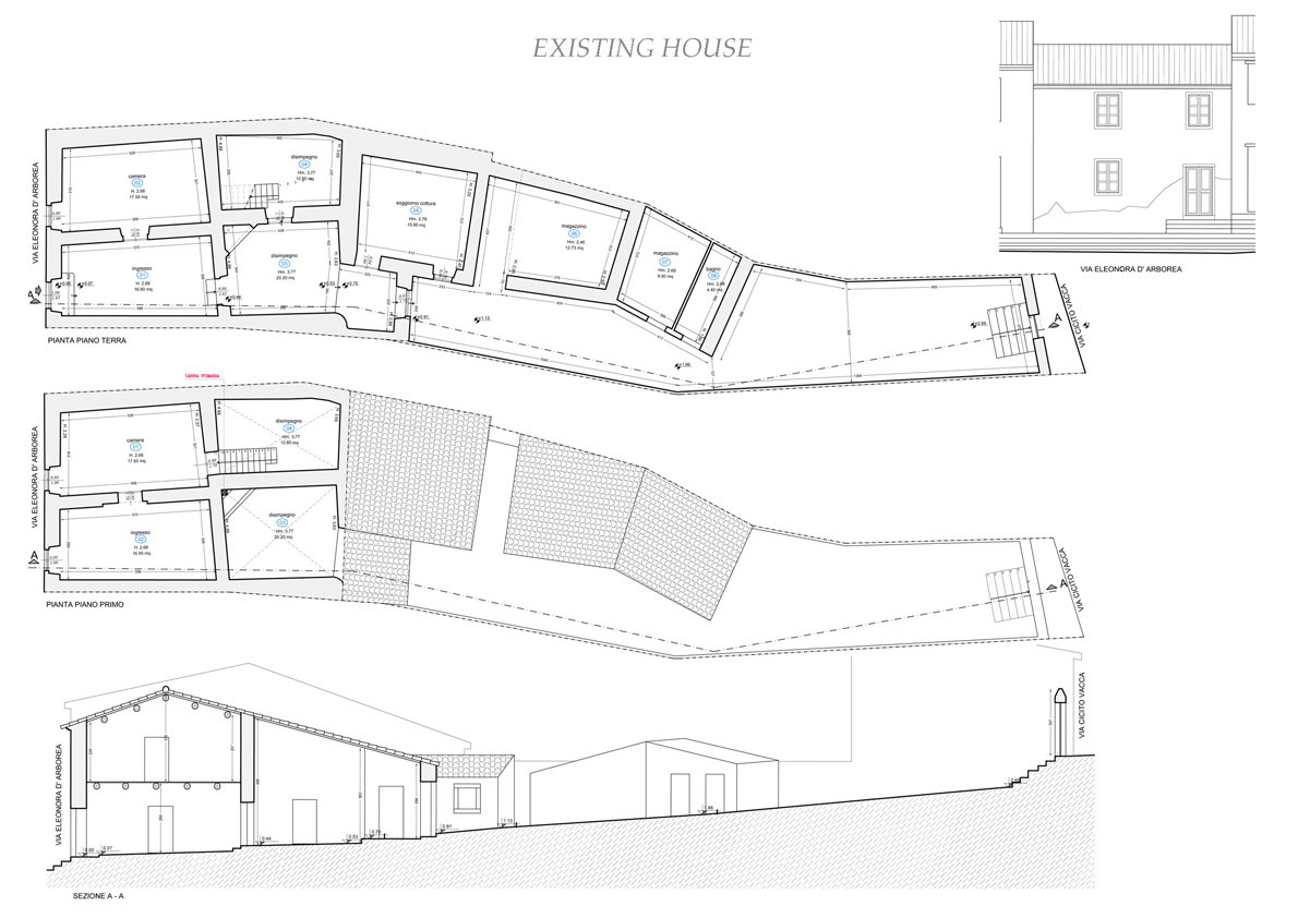
Directly on the Town Hall square in the historic center of Milis (district of Oristano), 15 kilometers from the sea, an extraordinary investment opportunity with great architectural potential and already realized project: architect sells a two-levels house of about 140 square meters with a large courtyard of about 80 square meters.
Being in the historic center, this typical `campidanese` house, which requires major renovation, is one of the oldest houses in Milis; among other things, inside there are remote stone decorations that confirm past activities of the Order of the Knights of Malta.
The house is on two levels: on the ground floor is the main entrance with a corridor-hallway, a bedroom, a small living room, a kitchen and a staircase to access the upper floor; here there are two other rooms.
The secondary part of the property consists of two rooms and a bathroom, the result of subsequent additions, with direct access from the courtyard. According to the project developed, almost all of this second part of the house will be demolished to free space for a courtyard / garden and a parking space with access from the back street. This refurbishment will bring back to ancient patterns of the campidanese house where the property will have an area of about 120 square meters while the courtyard and the parking space will develop for the remaining 100 square meters.
The property needs a renovation and functional adaptation, for which in Italy there is a restructuring bonus for the historical centers, valid for the entire 2019, then a tax relief of 50% of the expenses incurred with a maximum limit of 96,000 euros.
Being in the historic center, this typical `campidanese` house, which requires major renovation, is one of the oldest houses in Milis; among other things, inside there are remote stone decorations that confirm past activities of the Order of the Knights of Malta.
The house is on two levels: on the ground floor is the main entrance with a corridor-hallway, a bedroom, a small living room, a kitchen and a staircase to access the upper floor; here there are two other rooms.
The secondary part of the property consists of two rooms and a bathroom, the result of subsequent additions, with direct access from the courtyard. According to the project developed, almost all of this second part of the house will be demolished to free space for a courtyard / garden and a parking space with access from the back street. This refurbishment will bring back to ancient patterns of the campidanese house where the property will have an area of about 120 square meters while the courtyard and the parking space will develop for the remaining 100 square meters.
The property needs a renovation and functional adaptation, for which in Italy there is a restructuring bonus for the historical centers, valid for the entire 2019, then a tax relief of 50% of the expenses incurred with a maximum limit of 96,000 euros.
Directly on the Town Hall square in the historic center of Milis (district of Oristano), 15 kilometers from the sea, an extraordinary investment opportunity with great architectural potential and already realized project: architect sells a two-levels house of about 140 square meters with a large courtyard of about 80 square meters.
Being in ...
Being in ...
View more
CHECK IF AVAILABLE
Facebook
Twitter
Pinterest
LinkedIn
Email
Copy Link
WhatsApp
Messenger
