Show All 12 Photos
- Business
- For Sale
- Citluk
Croatia
CHECK IF AVAILABLE
CHECK IF AVAILABLE
CHEESERY VLAJINA Project for sale: (In the
vicinity of Krka National Park.* UNIQUE
OPPORTUNITY* A project (off plan) for the construction
of the buildings, the finishing and the
equipping of the Cheese making plant. Price on request.
County: Šibensko-kninska
City / Municipality: Promina
City area: Oklaj
Real estate surface: 1607 m2
Garden area: 4393 m2
Construction year: 2015
Storey: single-storey
Type of house: detached
Number of rooms: 7 or more
A project for the construction of the
buildings, the finishing and the equipping
of the Cheese making plant.
Summers Nekretnine / Real Estate is offering
a unique opportunity for investing in the
Croatian cheese industry. This remarkable
project offers infinite opportunities to
break into the profitable market of
traditional cheese production and sales. It
also has the added benefit of obtaining
grants from the European Agricultural Fund
(EAFRD), therefore, very realistically
expected return on investment in the amount
of 50% of total investments in the
documentation, construction, furnishing and
equipping of the building.
The project is in a prime location in
Promina which is located 20 km north-east of
Šibenik The Šibenik-Knin County which is
situated in the south of Croatia, in the
central part of northern Dalmatia. The total
area of the county is 5670 km2 and is close
to the national parks, Krka and Kornati,
therefore ensuring thousands of tourists
passing through this area.
The uniqueness of this county is the
valuable cultural and historical heritage.
Due to the quality, size and variety of its
monuments and their connection to the
Mediterranean and European heritage, the
historical heritage of the Sibenik-Knin
County has a great importance.
Tourism: The mild climate, attractive and
rugged coastline (285 islands), many
cultural and historical monuments (the
Cathedral of St. Jacob - UNESCO monument),
numerous and preserved natural beauties
(national parks Krka and Kornati, nature
parks Velebit and Vrana, nature monuments
Stara Straža/Old Guard and Cetina
Vrelo/Cetina Wellhead, as well as seven
significant landscapes) have defined the
county as a famous tourist destination. On
the European and world tourist market
Šibenik – Knin County has been positioned as
a leading sailing destination in the
Adriatic as well as in and the wider
Mediterranean region, due to its coast which
is the most indented in the Croatian part of
the Adriatic. Tourists, from more than 80
countries visit Croatia. Tourism in Croatia
is a major industry in Croatia. In 2012,
Croatia had 11.8 million tourist visitors
and in 2013 over 14 million tourists and
73.25 million nights, a record number of
visitors. Croatia aims to double these
numbers by 2020 with national strategy to
bring in 17.5 million foreign tourist and
revenue from tourism exceeding $17 billion.
Transport infrastructure: Road transport -
A1 highway passes through the county, and
there are 4 highway entrances. Maritime
transport – The port of Sibenik is one of
the oldest and best-protected harbours on
the Adriatic coast of Croatia. Railway
transport – The length of the international
terminal railroad in the county totals 149
294 km and the length of the regional
railway is 26 190 km. Air Traffic - The
distance from Šibenik to the airport of
Split is 60 km and about 70 km to Zadar
airport.
The Krka National Park is located entirely
within the territory of Šibenik-Knin County
and encompasses an area of 109 square
kilometers along the Krka River. Kornati is
the biggest archipelago in the Adriatic
Sea...It consist of 89 islands, islets,
cliffs and rocks, on area of 230 km2. It is
named after the largest island, Kornat. In
the National Park Kornati there are around
30 piers and about 20 places where guests
can try wonderful seafood and traditional
cuisine.
The Croatian consumers are very loyal to the
domestic standard types of cheese in spite
of the availability of imported cheese and
premium products. The sales of cheese have
followed the turbulence of the economy both
in volume and value terms. The Croatian
cheese production and market is relatively
small but in spite of this it has attracted
a lot of interest from foreign dairy
companies. The EU membership is the major
reason, and the possibilities to get further
access to the dairy market. This is also
expected to have a positive effect on the
cheese market and the future prospects from
2010 to 2015 are:
• The production will increase by 4,000 MT
but this is only to regain the level before
the GFC.
• The export remains stable at a very level
but the import will increase by 8,000 MT
Especially due to their EU membership.
• The consumption will soar in line with the
economic recovery with 10,000 MT.
(Source: Extract from the global cheese
market report)
General information about the project and
the construction of the buildings, the
finishes and the equipping of the Cheese
making plant.
The land available for constructing cheese
factory is 6.000 m2.
There is a possibility of purchasing more
land next to the planned project which can
be used for another factory (for instance
whey powder factory) 50.000 m2 (All
infrastructure is present).
Two possibilities: use present (done)
project for cheesemaking (Tulum and others)
or to adapt building to be for whey
production. Or use bigger land for new
projects.
The task of the project is the construction,
furnishing and equipping of the cheese dairy
with a tasting shop. Targeted product range
will be semi-soft cheese, cheese dried in an
animal sack (lambskin), and soft cheese in
type škripavac or feta, cream with 30% milk
fat and milk whey.
The building will have direct access to
public roads. The terrain is flat and
available on the plot is the necessary
infrastructure as follows: electricity,
drinking water from the public water supply
and telephone. At the location in there is
no public sewer system, a septic tank would
need to be dug with a sufficient volume (see
daily water consumption). As an energy
source to supply the facility, solar panels
from the roof and gas propane-butane will be
used.
Capacity and types of milk: 10,000 L per
shift (8 hours, in phase I), or 20,000
litres of milk in two shifts (phase II),
cow, sheep and goat milk. In-depth
interviews were conducted with local,
potential, future farmers (milk producers),
who showed willingness to cooperate with the
future cheese factory and will have
sufficient production resources (farmland
and accommodation for dairy animals). Within
a radius of 15-20 km there are a sufficient
number of farms that can meet the target
capacity of the cheese dairy, for all three
types of milk.
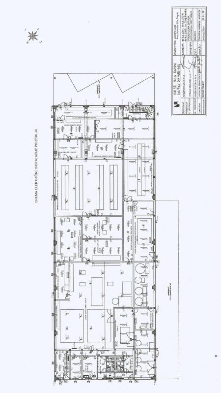
Property description:
The facilities outer dimensions will be
21.50 x 58.30 m and a total gross area of
1253.45 m2, detached on two floors where the
lower level of the premises used for
operation and processing, as well as
additional and statuary premises, while the
in the upper level will be used for the
tasting area. The height of the building
will be 6 m. The building and yard will be
completely enclosed by a fence and be
connected by a paved road which will allow
easy access to the road for the delivery of
incoming and outgoing supplies and products.
All entrance and exits roads will be covered
with an asphalt surface and there will be an
adequate parking area for all the vehicles.
The facility will consist of the following:
Delivery room (reception), for the cooling
and processing of milk and it has a under
covered area to accommodate tanks for milk
and whey.
A room for pasteurizing milk.
Room for milk processing.
A Brining room.
A room for wringing and drying of the cheese
and for forming a rind around the cheese.
Air-conditioned rooms for ripening of semi-
hard and hard cheese.
A room for cheese ripening.
A room for filling the animal sack (made
from lambskin) with cheese and salting it.
Air-conditioned rooms for the ripening of
cheese made in an animal sack (lambskin).
A room for packaging of the cheese ripened
in an animal sack (Lambskin).
A room for the packaging of the products.
Refrigerator – for cooling and storage of
finished products ready for distribution.
Expedite- a preparation and recording of
goods for shipment and transport.
A room for the accommodation of a two-line
automated central system for washing the
closed system equipment. (CIP).
A room for automatic washing and the
sanitation of the moulds, baskets and small
cheese inventory.
A room for storage and cleaning of the mold
from the cheese.
Central boiler to produce steam for the
plant`s operations.
A room to accommodate a unit for the
production of ice water.
Warehouse for the animal sacks (lambskin)
and salt.
Storage for packaging materials.
Additional areas:
a. The Office for technologists.
b. The sanitary facilities for men with pre-
space for hand washing.
c. Lavatory for women with pre-space for
hand washing.
d. Laboratory for quality control of raw
materials and products.
e. The dining room with a rest area for
workers.
f. Women`s locker rooms with shower.
g. Men`s locker rooms with shower.
h. Hallway entrance for staff in the
facility.
i. The corridor - a corridor for
communication between the additional and
legally prescribed premises
j. The foyer with a staircase to the first
floor of the facility (tasting area).
The following table shows the total profit
per unit of product due to the planned
structure of processing. In the same table
displays the aggregate daily gain in Kuna
based on processing 5,000 litres of milk per
day
Type of product Item Quantity per year (kg)
Profit per item Total profit
Semi-hard cheese 120583,45 8, --(Phone number)-- ,15
hard cheese 84457,77 16, --(Phone number)-- ,24
Cheese ripened in an animal sack 44148,54
19, --(Phone number)-- ,70
Ricotta 245616,00 19, --(Phone number)-- ,04
soft cheese 83953,00 13, --(Phone number)-- ,9
Sour cream 86559,70 13, --(Phone number)-- ,60
Total profit (HRK) per year 10.324.689,63
From the calculations it is obvious that the
annual profit assuming operation at a
capacity of 10,000 litres per day amounts to
10,324,689.63 (HRK) per annum with seven
working days per week and 51 working weeks
per year.
The range of the planned annual volume of
production (phase I):
Soft cheese in a type of feta 61 t.
Semi-hard cheese 124 t.
Hard mixed sheep`s and cows cheese 46 t.
Hard cow`s cheese 58 t
Mixed sheep`s and cow`s cheese ripened in
animal sack** 50, 5 t.
Cow`s cheese ripened in animal sack 33 t
Cheese like Ricotta (albumin cheese) 143 t.
Cheese will be produced with spices (typical
Mediterranean herbs), therefore sensor
processed cheeses today are highly respected
in the World market, especially in the
market of Western countries (EU and US).
Traditional Croatian cheese ripened in a
special bag made from lambskin and prepared
in a special traditional way. These cheeses
are cherished and sort after throughout the
whole of Dalmatia and Herzegovina, and even
produced by similar technology in Turkey,
Lebanon, Montenegro and Bosnia and
Herzegovina.
In the preparation of the documents, the
best- qualified experts from renowned
institutions and companies are involved, of
which it should be noted: Jacob Cota, prof.
(former long-time manager of the largest
Croatian oil company INA, now retired)
Professor Samir Kalit. PhD (Faculty of
Agriculture), professor Ante Ivanković, PhD
(Faculty of Agriculture), Christian Mavrek,
BSc. political scientist (company Kaja
Consulting), Josip Bacinger, BSc. ecc.
(Company Bercon Ltd.), Mato Geljić,
specialists in construction jobs and Marija
Hrgarek, BSc. Ing. Chem. Tech. (Company Eco
Mission Ltd.). Most specialists are
available to provide the necessary
information and details about the project
and they can be engaged in the further
implementation of the project.
All the documentation has been prepared in
accordance with all the standards for
Submission for obtaining grants from the
European Agricultural Fund (EAFRD).
Therefore, very realistically expected
return on investment in the amount of 50% of
total investments in the documentation,
construction, furnishing and equipping of
the building.
Location and cadastral plot: 230/1,
cadastral municipality Oklaj.
Documentation ***:
Conceptual design: TD 149/13, done by
Design, Ltd., project design, supervision,
consulting, Zagrebačka Street 18, 22320
Drniš.
Study of environmental protection: made by
the company Eco Mission Ltd. environmental,
protection and consulting, Vladimir Nazor
12, and 42000 Varazdin). The study was
approved by the Ministry of Environmental
Protection.
Location permit: The Republic of Croatia,
Sibenik-Knin County, Department of
Landscaping and Construction, Branch Drnis,
Class: UP/350-05/13-01/86, Reg. No. 2182/1-
16/2-14-21, from the 10th October 2014.
Building permit.
Feasibility study: made by the company
Bercon, Ltd. Marsala Tita 16, 40305
Nedelišće.
Contract for awarding grants from the
European Agricultural Fund (EAFRD): will be
signed with the company Kaja Consulting,
Ruder Boskovic 16/2, 40000 Čakovec, for
Submission for Measure 7 ****. The company
Kaja Consulting has so far successfully
followed a large number of companies that
competed and received funding from the
European Agricultural Fund (SAPARD, IPARD).
The financial proposals: In previous work on
the project all the relevant and complete
financial bids for the construction,
finishing, equipping of cheese plant and
wastewater treatment unit were collected.
Summers Real Estate as a licensed real
estate company in cooperation with our law
team will regulate all the necessary
purchase documentation .
Please note that the square meter age and figures etc .., are approximate as this is a planned project and has not yet been built.
Join us on Facebook; Tihomir Lekic and
Summers / Real Estate and follow all of our
offers and discounts on a daily basis.
Permits: Building permit, Owners certificate
(Deed)
Communal: Phone, City water, Heating : The
heating system, ventilation and air
conditioning, Parking: 7 or more
vicinity of Krka National Park.* UNIQUE
OPPORTUNITY* A project (off plan) for the construction
of the buildings, the finishing and the
equipping of the Cheese making plant. Price on request.
County: Šibensko-kninska
City / Municipality: Promina
City area: Oklaj
Real estate surface: 1607 m2
Garden area: 4393 m2
Construction year: 2015
Storey: single-storey
Type of house: detached
Number of rooms: 7 or more
A project for the construction of the
buildings, the finishing and the equipping
of the Cheese making plant.
Summers Nekretnine / Real Estate is offering
a unique opportunity for investing in the
Croatian cheese industry. This remarkable
project offers infinite opportunities to
break into the profitable market of
traditional cheese production and sales. It
also has the added benefit of obtaining
grants from the European Agricultural Fund
(EAFRD), therefore, very realistically
expected return on investment in the amount
of 50% of total investments in the
documentation, construction, furnishing and
equipping of the building.
The project is in a prime location in
Promina which is located 20 km north-east of
Šibenik The Šibenik-Knin County which is
situated in the south of Croatia, in the
central part of northern Dalmatia. The total
area of the county is 5670 km2 and is close
to the national parks, Krka and Kornati,
therefore ensuring thousands of tourists
passing through this area.
The uniqueness of this county is the
valuable cultural and historical heritage.
Due to the quality, size and variety of its
monuments and their connection to the
Mediterranean and European heritage, the
historical heritage of the Sibenik-Knin
County has a great importance.
Tourism: The mild climate, attractive and
rugged coastline (285 islands), many
cultural and historical monuments (the
Cathedral of St. Jacob - UNESCO monument),
numerous and preserved natural beauties
(national parks Krka and Kornati, nature
parks Velebit and Vrana, nature monuments
Stara Straža/Old Guard and Cetina
Vrelo/Cetina Wellhead, as well as seven
significant landscapes) have defined the
county as a famous tourist destination. On
the European and world tourist market
Šibenik – Knin County has been positioned as
a leading sailing destination in the
Adriatic as well as in and the wider
Mediterranean region, due to its coast which
is the most indented in the Croatian part of
the Adriatic. Tourists, from more than 80
countries visit Croatia. Tourism in Croatia
is a major industry in Croatia. In 2012,
Croatia had 11.8 million tourist visitors
and in 2013 over 14 million tourists and
73.25 million nights, a record number of
visitors. Croatia aims to double these
numbers by 2020 with national strategy to
bring in 17.5 million foreign tourist and
revenue from tourism exceeding $17 billion.
Transport infrastructure: Road transport -
A1 highway passes through the county, and
there are 4 highway entrances. Maritime
transport – The port of Sibenik is one of
the oldest and best-protected harbours on
the Adriatic coast of Croatia. Railway
transport – The length of the international
terminal railroad in the county totals 149
294 km and the length of the regional
railway is 26 190 km. Air Traffic - The
distance from Šibenik to the airport of
Split is 60 km and about 70 km to Zadar
airport.
The Krka National Park is located entirely
within the territory of Šibenik-Knin County
and encompasses an area of 109 square
kilometers along the Krka River. Kornati is
the biggest archipelago in the Adriatic
Sea...It consist of 89 islands, islets,
cliffs and rocks, on area of 230 km2. It is
named after the largest island, Kornat. In
the National Park Kornati there are around
30 piers and about 20 places where guests
can try wonderful seafood and traditional
cuisine.
The Croatian consumers are very loyal to the
domestic standard types of cheese in spite
of the availability of imported cheese and
premium products. The sales of cheese have
followed the turbulence of the economy both
in volume and value terms. The Croatian
cheese production and market is relatively
small but in spite of this it has attracted
a lot of interest from foreign dairy
companies. The EU membership is the major
reason, and the possibilities to get further
access to the dairy market. This is also
expected to have a positive effect on the
cheese market and the future prospects from
2010 to 2015 are:
• The production will increase by 4,000 MT
but this is only to regain the level before
the GFC.
• The export remains stable at a very level
but the import will increase by 8,000 MT
Especially due to their EU membership.
• The consumption will soar in line with the
economic recovery with 10,000 MT.
(Source: Extract from the global cheese
market report)
General information about the project and
the construction of the buildings, the
finishes and the equipping of the Cheese
making plant.
The land available for constructing cheese
factory is 6.000 m2.
There is a possibility of purchasing more
land next to the planned project which can
be used for another factory (for instance
whey powder factory) 50.000 m2 (All
infrastructure is present).
Two possibilities: use present (done)
project for cheesemaking (Tulum and others)
or to adapt building to be for whey
production. Or use bigger land for new
projects.
The task of the project is the construction,
furnishing and equipping of the cheese dairy
with a tasting shop. Targeted product range
will be semi-soft cheese, cheese dried in an
animal sack (lambskin), and soft cheese in
type škripavac or feta, cream with 30% milk
fat and milk whey.
The building will have direct access to
public roads. The terrain is flat and
available on the plot is the necessary
infrastructure as follows: electricity,
drinking water from the public water supply
and telephone. At the location in there is
no public sewer system, a septic tank would
need to be dug with a sufficient volume (see
daily water consumption). As an energy
source to supply the facility, solar panels
from the roof and gas propane-butane will be
used.
Capacity and types of milk: 10,000 L per
shift (8 hours, in phase I), or 20,000
litres of milk in two shifts (phase II),
cow, sheep and goat milk. In-depth
interviews were conducted with local,
potential, future farmers (milk producers),
who showed willingness to cooperate with the
future cheese factory and will have
sufficient production resources (farmland
and accommodation for dairy animals). Within
a radius of 15-20 km there are a sufficient
number of farms that can meet the target
capacity of the cheese dairy, for all three
types of milk.
Property description:
The facilities outer dimensions will be
21.50 x 58.30 m and a total gross area of
1253.45 m2, detached on two floors where the
lower level of the premises used for
operation and processing, as well as
additional and statuary premises, while the
in the upper level will be used for the
tasting area. The height of the building
will be 6 m. The building and yard will be
completely enclosed by a fence and be
connected by a paved road which will allow
easy access to the road for the delivery of
incoming and outgoing supplies and products.
All entrance and exits roads will be covered
with an asphalt surface and there will be an
adequate parking area for all the vehicles.
The facility will consist of the following:
Delivery room (reception), for the cooling
and processing of milk and it has a under
covered area to accommodate tanks for milk
and whey.
A room for pasteurizing milk.
Room for milk processing.
A Brining room.
A room for wringing and drying of the cheese
and for forming a rind around the cheese.
Air-conditioned rooms for ripening of semi-
hard and hard cheese.
A room for cheese ripening.
A room for filling the animal sack (made
from lambskin) with cheese and salting it.
Air-conditioned rooms for the ripening of
cheese made in an animal sack (lambskin).
A room for packaging of the cheese ripened
in an animal sack (Lambskin).
A room for the packaging of the products.
Refrigerator – for cooling and storage of
finished products ready for distribution.
Expedite- a preparation and recording of
goods for shipment and transport.
A room for the accommodation of a two-line
automated central system for washing the
closed system equipment. (CIP).
A room for automatic washing and the
sanitation of the moulds, baskets and small
cheese inventory.
A room for storage and cleaning of the mold
from the cheese.
Central boiler to produce steam for the
plant`s operations.
A room to accommodate a unit for the
production of ice water.
Warehouse for the animal sacks (lambskin)
and salt.
Storage for packaging materials.
Additional areas:
a. The Office for technologists.
b. The sanitary facilities for men with pre-
space for hand washing.
c. Lavatory for women with pre-space for
hand washing.
d. Laboratory for quality control of raw
materials and products.
e. The dining room with a rest area for
workers.
f. Women`s locker rooms with shower.
g. Men`s locker rooms with shower.
h. Hallway entrance for staff in the
facility.
i. The corridor - a corridor for
communication between the additional and
legally prescribed premises
j. The foyer with a staircase to the first
floor of the facility (tasting area).
The following table shows the total profit
per unit of product due to the planned
structure of processing. In the same table
displays the aggregate daily gain in Kuna
based on processing 5,000 litres of milk per
day
Type of product Item Quantity per year (kg)
Profit per item Total profit
Semi-hard cheese 120583,45 8, --(Phone number)-- ,15
hard cheese 84457,77 16, --(Phone number)-- ,24
Cheese ripened in an animal sack 44148,54
19, --(Phone number)-- ,70
Ricotta 245616,00 19, --(Phone number)-- ,04
soft cheese 83953,00 13, --(Phone number)-- ,9
Sour cream 86559,70 13, --(Phone number)-- ,60
Total profit (HRK) per year 10.324.689,63
From the calculations it is obvious that the
annual profit assuming operation at a
capacity of 10,000 litres per day amounts to
10,324,689.63 (HRK) per annum with seven
working days per week and 51 working weeks
per year.
The range of the planned annual volume of
production (phase I):
Soft cheese in a type of feta 61 t.
Semi-hard cheese 124 t.
Hard mixed sheep`s and cows cheese 46 t.
Hard cow`s cheese 58 t
Mixed sheep`s and cow`s cheese ripened in
animal sack** 50, 5 t.
Cow`s cheese ripened in animal sack 33 t
Cheese like Ricotta (albumin cheese) 143 t.
Cheese will be produced with spices (typical
Mediterranean herbs), therefore sensor
processed cheeses today are highly respected
in the World market, especially in the
market of Western countries (EU and US).
Traditional Croatian cheese ripened in a
special bag made from lambskin and prepared
in a special traditional way. These cheeses
are cherished and sort after throughout the
whole of Dalmatia and Herzegovina, and even
produced by similar technology in Turkey,
Lebanon, Montenegro and Bosnia and
Herzegovina.
In the preparation of the documents, the
best- qualified experts from renowned
institutions and companies are involved, of
which it should be noted: Jacob Cota, prof.
(former long-time manager of the largest
Croatian oil company INA, now retired)
Professor Samir Kalit. PhD (Faculty of
Agriculture), professor Ante Ivanković, PhD
(Faculty of Agriculture), Christian Mavrek,
BSc. political scientist (company Kaja
Consulting), Josip Bacinger, BSc. ecc.
(Company Bercon Ltd.), Mato Geljić,
specialists in construction jobs and Marija
Hrgarek, BSc. Ing. Chem. Tech. (Company Eco
Mission Ltd.). Most specialists are
available to provide the necessary
information and details about the project
and they can be engaged in the further
implementation of the project.
All the documentation has been prepared in
accordance with all the standards for
Submission for obtaining grants from the
European Agricultural Fund (EAFRD).
Therefore, very realistically expected
return on investment in the amount of 50% of
total investments in the documentation,
construction, furnishing and equipping of
the building.
Location and cadastral plot: 230/1,
cadastral municipality Oklaj.
Documentation ***:
Conceptual design: TD 149/13, done by
Design, Ltd., project design, supervision,
consulting, Zagrebačka Street 18, 22320
Drniš.
Study of environmental protection: made by
the company Eco Mission Ltd. environmental,
protection and consulting, Vladimir Nazor
12, and 42000 Varazdin). The study was
approved by the Ministry of Environmental
Protection.
Location permit: The Republic of Croatia,
Sibenik-Knin County, Department of
Landscaping and Construction, Branch Drnis,
Class: UP/350-05/13-01/86, Reg. No. 2182/1-
16/2-14-21, from the 10th October 2014.
Building permit.
Feasibility study: made by the company
Bercon, Ltd. Marsala Tita 16, 40305
Nedelišće.
Contract for awarding grants from the
European Agricultural Fund (EAFRD): will be
signed with the company Kaja Consulting,
Ruder Boskovic 16/2, 40000 Čakovec, for
Submission for Measure 7 ****. The company
Kaja Consulting has so far successfully
followed a large number of companies that
competed and received funding from the
European Agricultural Fund (SAPARD, IPARD).
The financial proposals: In previous work on
the project all the relevant and complete
financial bids for the construction,
finishing, equipping of cheese plant and
wastewater treatment unit were collected.
Summers Real Estate as a licensed real
estate company in cooperation with our law
team will regulate all the necessary
purchase documentation .
Please note that the square meter age and figures etc .., are approximate as this is a planned project and has not yet been built.
Join us on Facebook; Tihomir Lekic and
Summers / Real Estate and follow all of our
offers and discounts on a daily basis.
Permits: Building permit, Owners certificate
(Deed)
Communal: Phone, City water, Heating : The
heating system, ventilation and air
conditioning, Parking: 7 or more
CHEESERY VLAJINA Project for sale: (In the
vicinity of Krka National Park.* UNIQUE
OPPORTUNITY* A project (off plan) for the construction
of the buildings, the finishing and the
equipping of the Cheese making plant. Price on request.
County: Šibensko-kninska
City / Municipality: Promina
City area: Oklaj
Real estate surfa...
vicinity of Krka National Park.* UNIQUE
OPPORTUNITY* A project (off plan) for the construction
of the buildings, the finishing and the
equipping of the Cheese making plant. Price on request.
County: Šibensko-kninska
City / Municipality: Promina
City area: Oklaj
Real estate surfa...
View more
CHECK IF AVAILABLE
Facebook
Twitter
Pinterest
LinkedIn
Email
Copy Link
WhatsApp
Messenger
